側掛電機高速卷門安裝接線說明
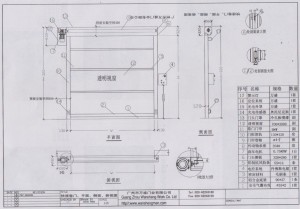
一,側掛型高速卷門結構配置圖

二,安裝門軌、固定門頭
1、門框和門洞對齊導軌固定垂直,門框和門洞兩邊距離相等;
2、門頭水平與墻體固定牢固,空心墻需要將墻體穿透連接;
3、電機與門頭連接牢固,連接時注意4跟螺絲與減震膠墊用力平均;
4、電控箱離地面1.2米固定.
三,電機和電控箱接線說明

將電機馬達電源線連接到電控箱接線端子,對照接線碼進行連接固定(V1、U1、W1、12、0)
四,編碼器與電控箱接線說明
先將法蘭與門頭側板軸孔居中固定,將編碼定位器與法蘭固定,磁頭螺絲需對準編碼器中心點。

將編碼定位器連接線水晶頭插入電箱變頻器頂部預留端口
注意:磁頭螺絲與法蘭水平或磁頭螺絲凹進2mm左右防止接觸摩擦,將編碼定位器螺絲固定,編碼定位器小圈對磁頭。
五,側掛型超大門編碼器與電箱接線說明
先將法蘭與門頭側板軸孔居中固定,將編碼定位器與法蘭固定,磁頭螺絲需對準編碼器中心點。G與X7定位時短接,上升/下降定位完成后拆除連接線,G與X7定位時調整電控箱面板轉換開關,可設全開或半開門功能。

將編碼定位器連接線水晶頭插入電箱變頻器頂部預留端口
注意:磁頭螺絲與法蘭水平或磁頭螺絲凹進2mm左右防止接觸摩擦,將編碼定位器螺絲固定,編碼定位器小圈對磁頭。
六,機械行程與電控箱接線說明

調整行程內觸電定位,確認門體上升開門高度/門體下降關門高度;
將電機馬達電源線連接到電控箱接線端子,對照接線碼進行連接固定(V1、U1、W1、12、0);
將行程線與電箱接線端子對號碼連接X4、X5、G。
萬盛相關產品推薦:快速卷門>>快速卷門電機不啟動故障排除>>內置電機快速門>>快速卷門配件
廣州萬盛門業(yè)高速卷門安裝電話:020-62243188